Ontwerp nieuwbouw woning buitengebied
Woning buitengebied Raalte
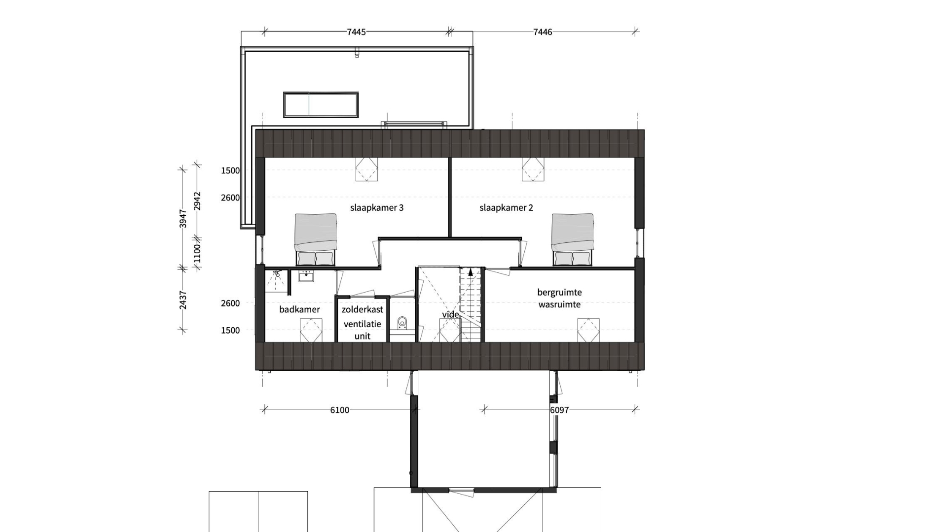
Woning in het buitengebied waarbij aan de wegzijde privacy is gewenst, aan de weiland zijde zijn uitzicht en licht juist belangrijk. Passend bij de omgeving hebben we gekozen voor natuurlijke materialen en een ingetogen vormgeving.
-
Nieuwbouw woning vrijstaand
-
Privacy, uitzicht en licht
-
Natuurlijke materialen
-
Ingetogen vormgeving
Contact
Hebt u bouw- of verbouwplannen? Wilt u uw woon- of werkomgeving aanpassen, maar u heeft geen idee hoe of waar te beginnen?
Zoek niet verder. U hebt hem gevonden.
Mail, bel of spreek een van ons persoonlijk aan voor meer informatie en de mogelijkheden. Wij komen graag bij u langs voor een kennismaking zodat u ervaart wat Nonon Architectuur voor u kan betekenen! Geheel vrijblijvend, maar dat spreekt vanzelf.















